
Bautagebuch
Schloss Stolberg: Aus Liebe zum Handwerk
Deutsche Stiftung Denkmalschutz, Bonn

Ein prachtvolles Schloss auf dem Bergsporn hoch über der Stadt – die Deutsche Stiftung Denkmalschutz als Eigentümerin und Bauherrin hat die Anlage vor dem Verfall gerettet; wir dürfen seit 2021 planen und mitbauen.
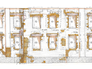
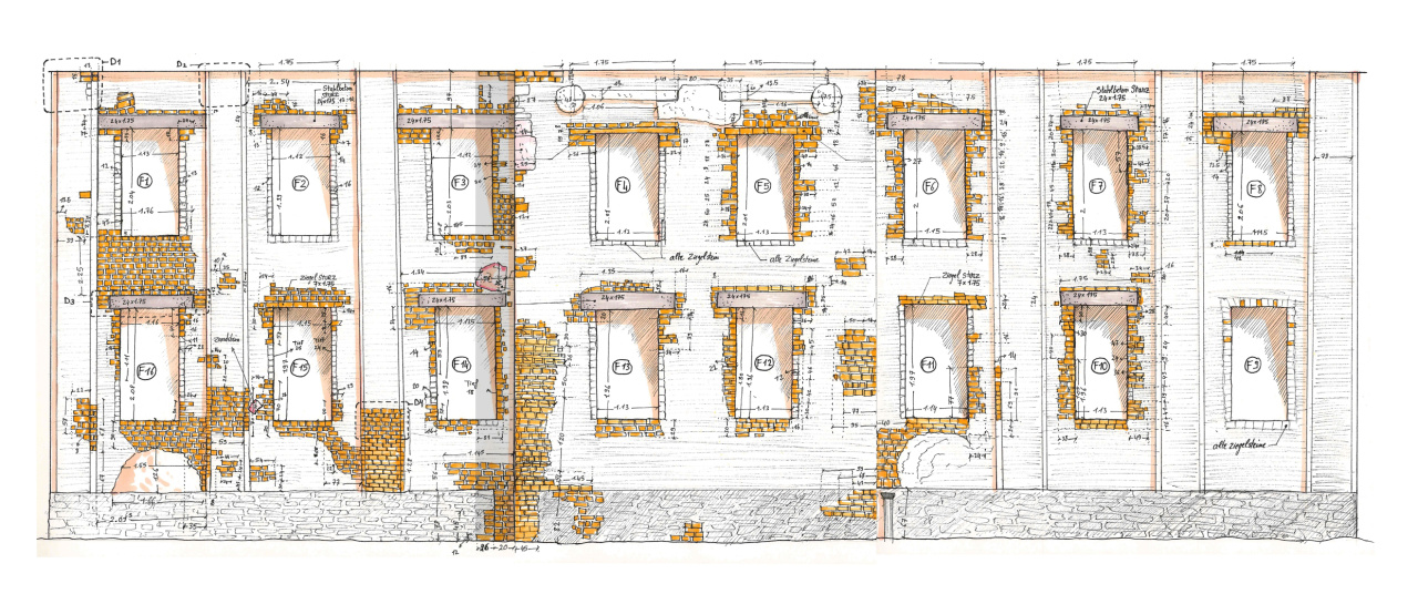
Auch hier zeichnen wir die unterschiedlichsten Erhaltungszustände und Details zur Dokumentation gerne per Hand.
Derzeit arbeiten wir u.a. an den Fassaden des barocken Windfangs. Dieser schließt den Schlosshof nach Norden ab. Dem Schloss zugewandt besteht er aus einer barocken Stein-Putzfassade mit gliedernden Lisenen, dem Berg zugewandt aus Sichtfachwerk.
Die Fassade des Kanzleiflügels mit Torhaus dagegen trägt hofseitig eine ortstypische Deckleistenschalung aus Holz. Diese wird derzeit ebenso wiederhergestellt wie das historische schmiedeeiserne Eingangstor.








Im Austausch mit dem Nachwuchs
Berufsorientierungsmesse im Lyonel-Feininger-Gymnasium, Halle (Saale)
Nachwuchsförderung heißt auch, den Nachwuchs aktiv anzusprechen. Also waren wir anlässlich einer Berufsorientierungsmesse im Lyonel-Feininger-Gymnasium in Halle (Saale) und haben den Schülern der Klassenstufen 9 bis 11 unser Büro und unsere Arbeiten vorgestellt.
Insgesamt haben sich 39 Aussteller in den Räumen des Gymnasiums präsentiert. Jeder Aussteller organsierte im Anschluss einen eigenen Workshop, zu denen sich Interessierte in Kleingruppen zusammenfanden.
Wir animierten unsere Teilnehmer, den Grundriss eines beliebig geschnittenen Zimmers mit drei Möbelstücken im Maßstab 1:25 zu entwerfen und zu präsentieren. Vielen Dank für den spannenden Tag!




"Mensch!" – Die Ausstellungseröffnung
Artists in Residence: Willkommen im Südharz

Wie entsteht Qualität? Wie gelingt gemeinsames Leben und Arbeiten? Was brauchen wir zu einem gelingenden Leben? Was macht Menschsein aus?
Vier Wochen lang haben der Bildhauer Markus Sauermann und der Maler Willi Müller bei uns in Bennungen gelebt und gearbeitet. Bilder sind entstanden und Skulpturen, die in einer Ausstellung in der Kirche zusammengefasst und bis zum 02. November 2024 gezeigt werden. Vier Wochen lang haben wir uns immer wieder getroffen und über die Arbeit gesprochen – eine Zeit, die nachwirkt.
Bei allem Schrecken, den wir täglich den Nachrichten entnehmen, ist es doch diese Frage: Fühlen wir noch mit? Sind und bleiben wir Mensch?
Mit unserer Arbeit als Architekten prägen wir Räume. In denen wird gelebt und gearbeitet. Es klingt einfach und ist doch so schwer – Mensch zu sein und zu bleiben im Alltäglichen. Danke für die gemeinsame Zeit!













































